Alfred's ArchiVita
BUILDING STRUCTURES
PROJECT 1
FETTUCCINE TRUSS BRIDGE

Forces and Its Actions in Structural Design
TRUSSES IN ACTION // COMPRESSION AND TENSION
The project introduced the knowledge of the strength of trussed building components by making a Fettuccine trussed bridge. At the beginning, intensive researches and discussion were carried out to understand the characteristics of trussed structure through a series of precedent studies. After that, exploration of bridge making was started to get an opportunity to have a hands-on experience with the Fettuccine as well as the adhensive used. Therefore, the design of the bridge was finalized after implementing some jointing methods as well as improving the workmanship, final bridge was produced with a satisfactory structure efficiency.
Throughout the process, we were able to evaluate and identify the tension and compression member in trussed structure. We also found out that different arrangement of the trusses would also affect the load distrubution performance of the structure. Last but not least, we also understand the importance of a structural design in building construction as it is the fundamental prerequisite for a building to stand and be supported.
![]() |
|---|
![]() |
![]() |
![]() |
![]() |
![]() |
![]() |
![]() |
![]() |
![]() |
![]() |
![]() |
![]() |
![]() |
![]() |
![]() |
![]() |
![]() |
![]() |
![]() |
![]() |
![]() |
![]() |
![]() |
![]() |
![]() |
![]() |
![]() |
![]() |
![]() |
![]() |
![]() |
![]() |
![]() |
![]() |
![]() |
![]() |
![]() |
![]() |
![]() |
![]() |
![]() |
![]() |
![]() |
![]() |
![]() |
![]() |
![]() |
![]() |
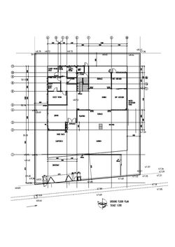
STRUCTURAL APPLICATIONS AND PROPOSAL
In this project, we were assigned to propose an extension of an existing maximum 3 storey bungalow with structural informations. It involved the understanding of structural theories, force distribution logic as well as basic structural calculations. We began our project by framing the existing structure. This was the exercise for us to develope the understanding of structural design in real life and the analysis skills on structural design through a series of studies, logical thinkings and drawings.
The individual part of the project was the extension design and structural proposal. Throughout the process of learning, we developed the critical thinking to analyze and identify the building components and its structural performance. It was also a chance for us to recognize and execute basic procedure of building structure design by composing a detailed report with a series of load and force calculations. Hence, we are now more considerate when designing a building with the knowledge that we learnt in this module.
PROJECT 2
EXTENSION OF REINFORCED CONCRETE BUNGALOW
![]() |
|---|
![]() |
![]() |
![]() |
![]() |
![]() |
![]() |
![]() |
![]() |
![]() |
![]() |
![]() |
![]() |
![]() |
![]() |
![]() |
![]() |
![]() |
![]() |
![]() |
![]() |
![]() |
![]() |
![]() |
![]() |
![]() |
![]() |
![]() |
![]() |
![]() |
![]() |
![]() |
![]() |
![]() |
![]() |
![]() |
![]() |
![]() |
![]() |
![]() |
![]() |
![]() |
![]() |
![]() |
![]() |
![]() |
![]() |
![]() |
![]() |
![]() |
![]() |
![]() |
![]() |
![]() |
![]() |
![]() |
![]() |
![]() |
![]() |
![]() |
![]() |
![]() |
![]() |
![]() |
![]() |
![]() |
![]() |
![]() |
![]() |
![]() |






















































































































